Husen
De två byggnaderna uppfördes 1964-1966 efter ritningar av arkitekterna Hultman & Malmo Ark AB. Byggherre var AB Stockholmshem och byggmästare Bygg-Calab AB.

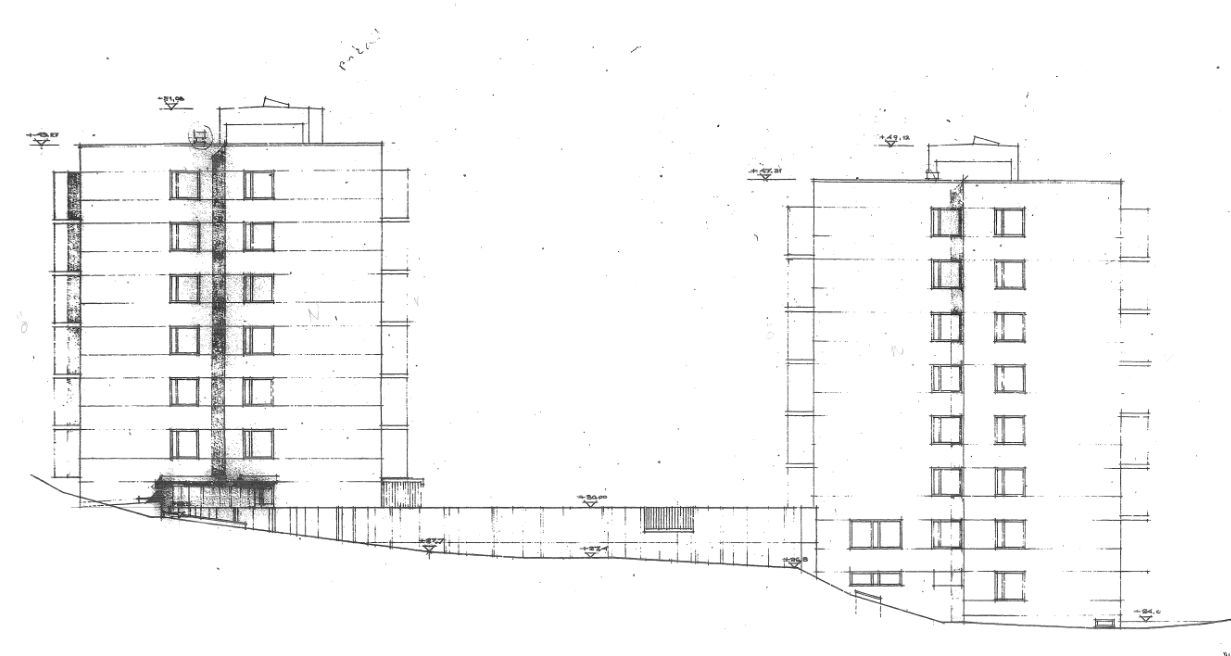
Ovan: Arkitektens ritning
Byggnaderna, som är sammankopplade genom ett underbyggt garage under ett gårdsrum, uppfördes som bostadshus för sjukvårdspersonal med butikslokaler i bottenvåning. Detta var det första exemplet på renodlad bostadsbebyggelse som uppfördes i Stadshagen, sedan tillkomsten av 1930-talslamellerna på Stadshagsberget. Husen har en tidstypisk arkitektur med avskalade och skarpt skurna volymer med platta tak. Byggnaderna har förändrats genom att balkonger glasats in, att franska balkonger byggts om till balkonger samt ett flertal interiöra ombyggnader.
I den lägre byggnadssektionen mellan husen har ett antal olika verksamheter bedrivits under åren, till exempel kontor för fastighetstjänster, försäkringsbolag och diverse föreningsverksamhet. I dagsläget rymmer lokalen en övernattningsdel och en festlokal som kan bokas av boende.

Kulturhistorisk klassificering
Stockholms stadsmuseums kulturhistoriska klassificeringar är ett kunskapsunderlag som tas fram i syfte att få en överblick över kulturhistoriskt värdefull bebyggelse i staden. Fastigheten Stugan 4 har markerats som Gul på Stadsmuseets kulturhistoriska klassificeringskarta, det vill säga fastighet med bebyggelse av positiv betydelse för stadsbilden och av kulturhistoriskt värde.
"Byggnaderna är medvetet placerade i den kuperade terrängen och utgör relativt välbevarade och stilrena exponenter för 1960-talets byggnadsskick"
-Kulturförvaltningen, Stadsmuseet, 2016

Bostadsrättsföreningen
Bostadsrättsföreningen Stugan 4, Sankt Göransgatan 146–152 bildades 2001-04-01 och består av 83 st. lägenheter varav en är hyresrätt, tre uthyrda lokaler där det bedrivs förskoleverksamhet och två parkeringsgarage.
Om du vill bidra med mer information eller gamla bilder till denna sida, är du varmt välkommen att kontakta styrelsen.
